Питають думку мешканців: в Івано-Франківську розробили нову схему на вулиці Грушевського

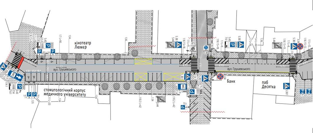
В Івано-Франківську розробили нову схему організації дорожнього руху по вулиці Грушевського.
Про це повідомив заступник міського голови й директор департаменту інфраструктури, житлової та комунальної політики Михайло Смушак, пише Фіртка.
За словами Смушака, головна мета — впорядкувати рух, паркування, підвищити безпеку та зробити вулицю зручнішою і доступнішою для людей з інвалідністю.
Так, проєкт передбачає:
  • антикишеня на перехресті з вул. Вагилевича — для кращої видимості та безпеки пішоходів;
  • пониження бордюру в районі ресторану «Десятка», а також нормативні відстані від припаркованих автомобілів до переходів;
  • місця для завантаження/розвантаження — для бізнесів, яких у центральній частині дуже багато.
Михайло Смушак зазначив, що є декілька дискусійних пропозицій, яких розроблена схема не передбачає, однак у міськраді цікавляться думкою мешканців.
Зокрема, обговорюють відновлення обмеження проїзду автомобілів по вул. Грушевського на ділянці від вул. Галицької до вул. Вагилевича у вихідні дні та святкові дні. За його словами, раніше така практика існувала, але її припинили через відсутність автоматичних елементів регулювання.
Також обговорюють обмеження транзиту через центр: або повне перекриття і перетворення вулиці Грушевського на пішохідну зону на ділянці від вулиці Галицької до вулиці Вагилевича, або створення закритої паркувальної зони — за прикладом вул. Шевченка (ділянка від вул. Січових Стрільців до вул. Гординського).
«Щодо закритої паркувальної зони, то тут принципова умова: така зона має бути виключно в управлінні КП «Сервіс паркування», а не приватних операторів — подібно до практики в центрі Львова», — додав директор Департаменту.

Фотогалерея


06.01.2026 Діана Струк 8234
Коментарі ()

04.05.2026

Місяць тому, в Івано-Франківському міському суді розпочався судовий процес, який ініціював відомий бізнесмен та громадський діяч Богдан Пукіш проти низки місцевих медіа.  

6020
27.04.2026
Діана Струк

Про виникнення конфлікту, позиції сторін, перебіг справи та можливий подальший розвиток подій Фіртці розповів представник Уповноваженого з прав людини в Івано-Франківській області Віталій Вербовий. 

6178
24.04.2026
Вікторія Матіїв

«Він був не лише військовим, а передусім людиною — справедливою та принциповою. Упродовж усього життя вірив у незалежну Україну і вважав, що її потрібно відстоювати — у різні періоди й різними способами. Навіть ті, хто не поділяв його поглядів, розуміли: він діє не зі злості, а з глибокого переконання, — пригадує Наталія Савченко свого чоловіка, полеглого воїна Сергія Савченка.

3346
20.04.2026
Вікторія Косович

Сьогодні Артем Жицький поєднує фітнес і відновлення, працюючи з військовими, які повертаються до цивільного життя. Про мотивацію, виклики реабілітації та те, чому відновлення після війни є процесом без фінальної точки, ветеран розповів в інтерв'ю журналістці Фіртки.

2466
14.04.2026
Вікторія Матіїв

Журналістка Фіртки поспілкувалась з лікарем-генетиком, професором кафедри медичної біології та медичної генетики Івано-Франківського національного медичного університету Русланом Козовим про те, що насправді означає «спадковість», які генетичні дослідження сьогодні доступні в Україні, що хвилює пацієнтів, та як правильно планувати вагітність, щоб мінімізувати ризики.

5346
10.04.2026
Михайло Бойчук

Як насправді виглядає ситуація з нелегальним гральним бізнесом в Івано-Франківській області? Фіртка отримала офіційну статистику від правоохоронних органів та регулятора азартних ігор ПлейСіті. Але перед цим — про проблему загалом, щоб на контрасті зрозуміти ситуацію в регіоні. 

4275 1

Війна  чітко показала хто ворог, і в яких  релігійних структурах він перебуває на території України, ми побачили  хто «розділяв і володарював». 

233

Івано-Франківськ в колаборації з Буковелем приймають вже третю за сто років Зимову Олімпіаду...

9422 2

Проблема України й українського народу не нова — і багато хто в світі цього не розуміє, тому й думають, що все «вирішиться саме собою». Такі твори, як «Тигролови», кажуть про абсолютно протилежне — все вирішимо лише ми самі.

1062

В Івано-Франківську про літературний Станіславський феномен говорили його патріархи Володимир Єшкілєв та Тарас Прохасько.  Володимир Єшкілєв, який власне придумав бренд літературного «Станіславського феномену», уявляв собі його як «мікрорайон в місті».

4135
04.05.2026

Добра тарілка — це не дієта, а насолода: страви, які радують очі, душу і живлять тіло. Навіть простий перекус може стати маленьким ритуалом, що заряджає позитивом на кілька годин уперед.  

3353
30.04.2026

Овочі родини капустяних належать до найкорисніших для здоров’я. Дієтологи пояснили, яку користь мають броколі та брюссельська капуста, чим вони відрізняються і яку з них краще додати до свого раціону.

4346
24.04.2026

Час останнього прийому їжі може впливати на здоров’я не менше, ніж її склад.  

4951
03.05.2026

Згромадження Сестер Пресвятої Родини, засноване в 911 році сестрою Теклею Юзефів, вже понад тисячу років працює з людьми, навчає дітей та підтримує громаду.  

8853
29.04.2026

У Пійлі відбудеться традиційна спільна молитва за повернення зниклих безвісти захисників України.  

1871
24.04.2026

У суботу, 2 травня, у відпустовому Марійському центрі «Цариці вервиці» в селі Погоня відбудеться особлива молитовна зустріч біля чудотворної ікони Богородиці.

2582
20.04.2026

У сучасному світі християнські цінності, зокрема — вчення про чистоту до шлюбу, нерідко стають предметом дискусій. Але християнство залишається послідовним у своїй позиції: дошлюбні статеві стосунки — гріх.

7227
01.05.2026

За словами Тараса Прохаська, уявлення про те, що письменник обов’язково «має щось сказати» і закласти чітке послання, — лише один із можливих підходів до літератури.

2922
04.05.2026

Всі говорять про нафту, про ціни на пальне, але є ще проблема добрив. Наразі про неї мовчать, адже вона поки що не вдарила по людях, як це відбулося з цінами на пальне…  

546
29.04.2026

Коли кілька днів тому принц Гаррі з Києва звернувся до Трампа з закликом згадати про Будапештський меморандум та «зробити більше для підтримки України», президент США жорстко відповів та заявив, що саме він говорить від імені Великої Британії більше, ніж сам принц.

929
20.04.2026

В Болгарії в неділю, 19 квітня, переконливу перемогу (44,7%) отримала коаліція "Прогресивна Болгарія" на чолі з колишнім президентом країни Руменом Радевим, якого вважають проросійським політиком.

2117
15.04.2026

Минулої неділі в Угорщині відбулися вибори парламенту. Цікаво, що всі три партії, які пройшли до парламенту є правими, — жодної лівої чи ліберальної партії в угорській політичній реальності «немає».

1979